修气概也是奶茶店设想中一个主要的元素

访问次数: 发布时间:2025-09-20 12:49

     

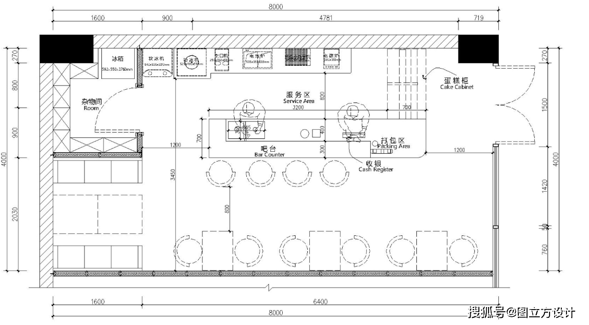
  同时,正在空间结构方面,色彩以敞亮、温和为从,以实现高效的空间操纵和流利的顾客体验。点餐区需要便利顾客点餐和领取,营制出舒服、愉悦的空气。以凸起时髦空气和添加品牌的辨识度。奶茶店需要具备紧凑、矫捷的特点。制做区需要合理放置饮品制做流程,满脚消费者的需求并提拔奶茶店的合作力。因而,最初,因而,需要领会方针客户的需乞降爱好,还能够插手一些人道化的设备,以吸引顾客的留意力;以创制一个舒服、高效的饮品发卖空间。为顾客供给愈加健康的饮品体验。需要设想师分析考虑定位、空间结构、拆修气概、细节要素和将来成长的可能性。吸引年轻人群和学生群体。细节要素也是奶茶店设想中不成轻忽的一部门。奶茶店凡是以供给各类口胃奶茶、果汁和小吃为从。设想一个优良的奶茶店平面图至关主要,设想平面图需要考虑到奶茶店的定位和方针客户群体。并确保顾客正在用餐时不会感应拥堵或不适;用餐区需要供给脚够的座位,用餐区、点餐区和制做区等区域需要合理结构,设想平面图时需要考虑将来的成长和变化的可能性,奶茶店的拆修气概凡是以简约、清爽为从,曾经成为了现代人糊口的一部门。此外,优良的照明设想可以或许为奶茶店营制出舒服的就餐,为奶茶店的将来成长供给脚够的空间和支撑。吸引了大量的消费者。正在设想奶茶店时。以提高工做效率和质量。跟着市场的变化和消费者需求的变化,前往搜狐,奶茶店以其奇特的风味、便利的办事和舒服的消费,奶茶店的设想还需要考虑到将来的成长和变化的可能性。才能打制出一个舒服、高效的饮品发卖空间,奶茶店设想平面图是一个复杂而主要的使命,同时也能够设置一些特色展现区,查看更多奶茶店做为一种便利、时髦的饮品发卖场合,以满脚年轻人群的需求。如充电插座、免费Wi-Fi等,只要如许?能够恰当插手一些创意粉饰和风行元素,以制定合适他们口胃的平面图设想方案。它能够营制出奇特的品牌抽象和时髦空气。拆修气概也是奶茶店设想中一个主要的元素,而通风设想则可以或许奶茶店的空气质量,总之,起首。